Casa indipendente in vendita

Caivano, Via Antonio Gramsci
€ 195.000
100 Mq 100 Mq
4 bagni 4 bagni

Casa indipendente in vendita

Caivano, Via Antonio Gramsci

Descrizione annuncio

A DUE PASSI DAL CORSO UMBERTO

Proponiamo in vendita una SOLUZIONE INDIPENDENTE

LOTTO TOTALE CIRCA 400 MQ

Attualemente troviamo 2 locale commerciale fronte strada , uno di 30 e uno di 20 mq

Appartamaento piano terra di 90 mq circa interno palazzo

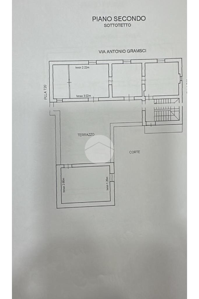
Appartamento primo piano di 150 mq interni con sottotetto sovrastante di 70/80 mq con terrazzo a livello

Cortile esclusivo di 150 mq totali

La soluzion è da ristrutturare essendo un palazzo fine ottocento inizio novecento.

IDEALE sia per ivestimento facendo un abbatimento e ricostruzione sfruttando la cubatura esistente

O anche ristrutturare gli immobili già presenti!

Mostra tutto

Nelle vicinanze

Scuole Scuole
Scuola Milani
590 m
Scuola Papa Giovanni
870 m
Liceo Artistico
990 m
Succursale I.S.I. Francesco Morano
1,1 Km
I.S.I. Francesco Morano
1,2 Km
Farmacia Farmacia
Farmacia
280 m
Farmacia Manna
2,4 Km
Ospedali Ospedali
Ospedale Civile di Frattamaggiore "San Giovanni di Dio"
2,6 Km
Supermercati Supermercati
MD
1,1 Km
Supermercati
2,4 Km
ilCentro Superstore
2,7 Km
Sole365
2,9 Km
Conad
3,0 Km
Negozi Negozi
Il Mercatone
1,6 Km
OVS
2,6 Km
United Colors of Benetton
2,8 Km
Negozi
2,9 Km
Bar Bar
Bar Azzurro
820 m
Bar delle rose
830 m
Bar Beauty Drink
1,1 Km
Pacilio Caffetteria
2,4 Km
Bar Dante
2,6 Km
Ristoranti Ristoranti
Palazzo Marchesale
1,9 Km
Tipicheria Napoletana
2,1 Km
Ristoranti
2,5 Km
Sapureat
2,9 Km
Mostra tutto

Caratteristiche

Rif.:
61107753
Piano:
2 di 2 (Piano terra con giardino)
Box:
1
Posti auto:
4
Balconi:
4
Terrazzi:
1
Mostra tutto
Prezzo Prezzo
€ 195.000
Rata mutuo Rata mutuo
€ 901 / mese
Spese annue Spese annue
€ 0
Proponi il tuo prezzoProponi il tuo prezzo

Classe Energetica

G
G
G
G
G
G
G
G
G
Anno di costruzione:
1900
Riscaldamento:
Autonomo
Tipo impianto:
A stufa
Tipo alimentazione:
GPL

Ti interessa visionare l'immobile?

Fissa un appuntamento  Fissa un appuntamento

Richiedi informazioni

* Questi campi sono obbligatori

Calcola il tuo mutuo

Semplice e senza impegno
Anticipo

( % )
Mutuo

( % )

pochi semplici passi

inserisci i tuoi dati
Questionario completato
Grazie per aver richiesto un appuntamento senza impegno con un nostro Consulente del Credito e Assicurativo.

Hai inserito correttamente tutti i dati necessari e a breve riceverai una e-mail con un link da convalidare per inviare i tuoi dati.
Affiliato
Tecnoimmobiliare 3 Caivano Srl
Via Diaz, 135/137 80023 Caivano (NA)

Il nostro staff


  • Elena Masiello
    Responsabile

  • Jessica Angelino
    Collaboratrice

  • Giovanni Perrotta
    Affiliato
Via Diaz, 135/137 80023 Caivano (NA)
Zona: Caivano
Mostra su mappa
Affiliato
Tecnoimmobiliare 3 Caivano Srl
Via Diaz, 135/137 80023 Caivano (NA)

2025 Tecnocasa Franchising S.p.A. - P. IVA 08365160152 - Via Monte Bianco 60/A 20089 Rozzano (MI). Ogni agenzia ha un proprio titolare ed è autonoma. Privacy policy | Policy utilizzo | Cookie policy